Crewe pub submits plans to expand with new commercial kitchen
By Ryan Parker 22nd Sep 2025
By Ryan Parker 22nd Sep 2025
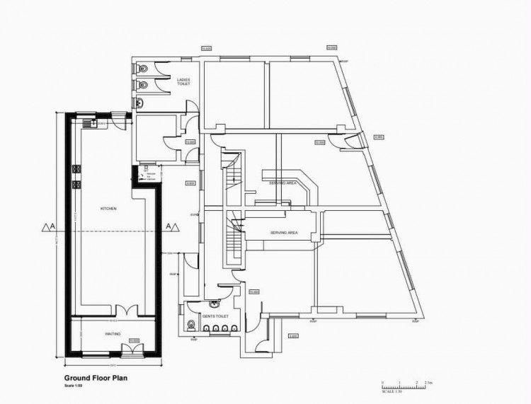
A Crewe pub has put forward plans to expand the building with a new commercial kitchen, along a waiting area at the venue.
This September, applicant, Mrs Shincy Syriac, of Growwin Investment Ltd, has submitted proposals on behalf of The Bridge Inn, Broad Street.
The applicant proposes the construction of a new kitchen at the Crewe East venue as an annexe.
The Bridge Inn, last sold for £333,940 in February 2024, was refused permission for four new flats to the rear of the premises in February 2025.

Mrs Syriac wanted the two-bedroom flats to be built on land currently used as an outside area for the venue, as well as a small section of the car parking area, under a flat roof.
A Cheshire East planning officer said: "The proposal is unacceptable in terms of its design, amenity (future and existing occupants) and car parking.
"As a result, the application is recommended for refusal."
Following this refusal, plans for a new pub kitchen and waiting area have come to light.
The last date for submitting comments is Tuesday 7 October, with a target decision date of Thursday 30 October.
READ MORE: Cheshire East Council narrowly agrees to back plans for devolution deal.
Free from clickbait, pop-up ads and unwanted surveys, Crewe Nub News is a quality online newspaper for our town.
Subscribe to our FREE weekly newsletter email HERE - just click the 'SIGN UP' button.
Please consider following Crewe Nub News on Facebook or Twitter.
CHECK OUT OUR Jobs Section HERE!
crewe vacancies updated hourly!
Click here to see more: crewe jobs
Share: