Crewe land with planning permission for new homes up for sale
By Ryan Parker 23rd Apr 2026
A plot of land in Crewe has been listed for sale for over £200,000, with planning permission for four new homes.
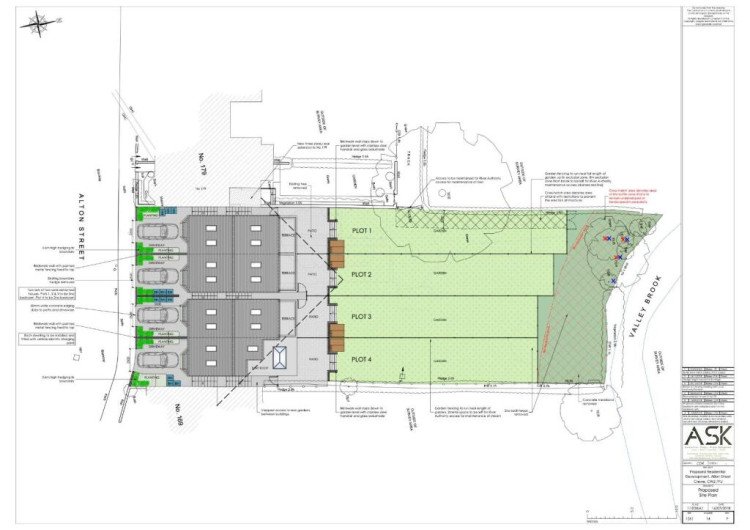
Land adjacent to 179 Alton Street is being marketed by CW Estate Agents for offers in excess of £220,000.
Located in Crewe West, the site has approval for two sets of two semi-detached properties, with three three-beds and one two-bed dwelling.
Each property would front Alton Street with the gardens running towards the Valley Brook. An eight-metre exclusion zone is planned between the homes and the water.
It is also proposed each new Crewe home is installed and fitted with electric vehicle charging points.

CW Estate Agents say: "We're delighted to introduce land for sale adjacent to 179 Alton Street, offered with full planning permission.
"Planning is approved for two sets of two semi-detached homes, and wow, these are not your average builds.
"Designed to be set over several floors, each home will offer three good-sized bedrooms and be positioned on fantastic, generously sized plots, space, style and serious potential all wrapped into one.
"A brilliant opportunity for developers or investors looking for something a little special.
"Take a little look at the artists impression of the video, to give you an idea of how these could look.
"Call us today for more information [01606 514152], opportunities like this don't hang around for long."
READ MORE: What's on in Crewe this weekend: Chris McCausland, Eminem Tribute and more.
Free from clickbait, pop-up ads and unwanted surveys, Crewe Nub News is a quality online newspaper for our town.
Subscribe to our FREE weekly newsletter email HERE - just click the 'SIGN UP' button.
Please consider following Crewe Nub News on Facebook or Twitter.
CHECK OUT OUR Jobs Section HERE!
crewe vacancies updated hourly!
Click here to see more: crewe jobs
Share: