Apartment block plans revealed for Crewe's former town centre youth hub
By Gwyn Griffiths 12th Mar 2022
By Gwyn Griffiths 12th Mar 2022




CREWE'S former youth hub is set to be converted into flats and a retail outlet as part of town centre redevelopment.
The Cheshire East Youth Support Service hub in Market Street closed during the first lockdown and was affected by water damage during summer storms in 2020.
The premises, which previously provided careers advice and services for older teenagers, has never reopened.
A Crewe Youth Zone is being planned among the 10 Towns Fund projects that are being developed as part of Crewe's £22.9 million Town Deal.
Oak Street car park is a potential location with a satellite centre on the land of the former Crewe Youth Centre at Mirion Street. The £10m scheme would include a sports hall, 3G pitch, climbing wall, dance studios and art space.
Now the site of the town's former youth facilities could be brought back into use after developers Sencap Limited submitted an application to Cheshire East Council.
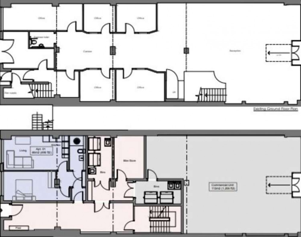
They propose converting the empty buildings in Market Street into nine apartments across the ground, first and second floors with an existing reception area forming a ground-floor retail unit.
Plans from SP Architects show that one apartment would be based in former hub offices on the ground floor, along with a bike and bin store.
First-floor offices would be converted into four apartments with another four flats on the second floor and communal lounges on first and second floors.
The plans tally with the aims of the Town Investment Plan drawn up as part of the government-funded Town Deal to attract new investment into town centre housing, tackle the problems of vacant town centre properties and encourage more in-town living.
Meanwhile, another scheme providing apartment living on the edge of Crewe at the former Dante's rock club premises has been recently revised after local opposition.
Proposals were submitted to the borough council in May last year to demolish the empty 19th-century home and club extension at 2-4 Gatefield Street in Hightown and build a complex of 13 flats and ground floor office on the site.
But the owners of the adjacent property on Victoria Street, which is used as a HMO (House of Multiple Occupation), complained the original plans would see a rear car park accessed from Gatefield Street blocked off.
The revised layout now offers access for services, including bin and waste disposal, to the neighbouring premises.
The demolition of the former rock club did attract a heritage review as it is near Grade II listed buildings, including the railway workers' terrace and St. Mary's Roman Catholic Church.
Currently, Crewe Town Council is asking residents to nominate buildings and places they think are locally important for the Cheshire Local List.
This has been created by local councils to recognise and manage places that people feel are important to areas for reasons including being of architectural and historic interest.
But a heritage consultant concluded in a report on the Gatefield Street/Victoria Street site: "As an undesignated house of circa 1870, altered and extended and of no particular interest, the significance of the application building in intrinsic terms is low."
- You can nominate places for the Cheshire Local List by registering here.
Should the former Dante's rock club building be on it?
CHECK OUT OUR Jobs Section HERE!
crewe vacancies updated hourly!
Click here to see more: crewe jobs
Share: